Toggle navigation
Home
Properties
Sales
Rentals
Business
Commercial properties
About us
Services
Sell and rent with us
Contacts
Property evaluation
Previous
Next
600 € / month
Office 50 sqm. nearby Porta Elisa, elevator and parking space
Office for rent • Lucca
(Arancio)
- Viale Castruccio Castracani
In the immediate vicinity of Porta Elisa, with easy walking access to the historic center, we offer for rent this bright portion of approximately 50 square meters of a larger office located on the first floor served by an elevator in a building entirely used as offices.
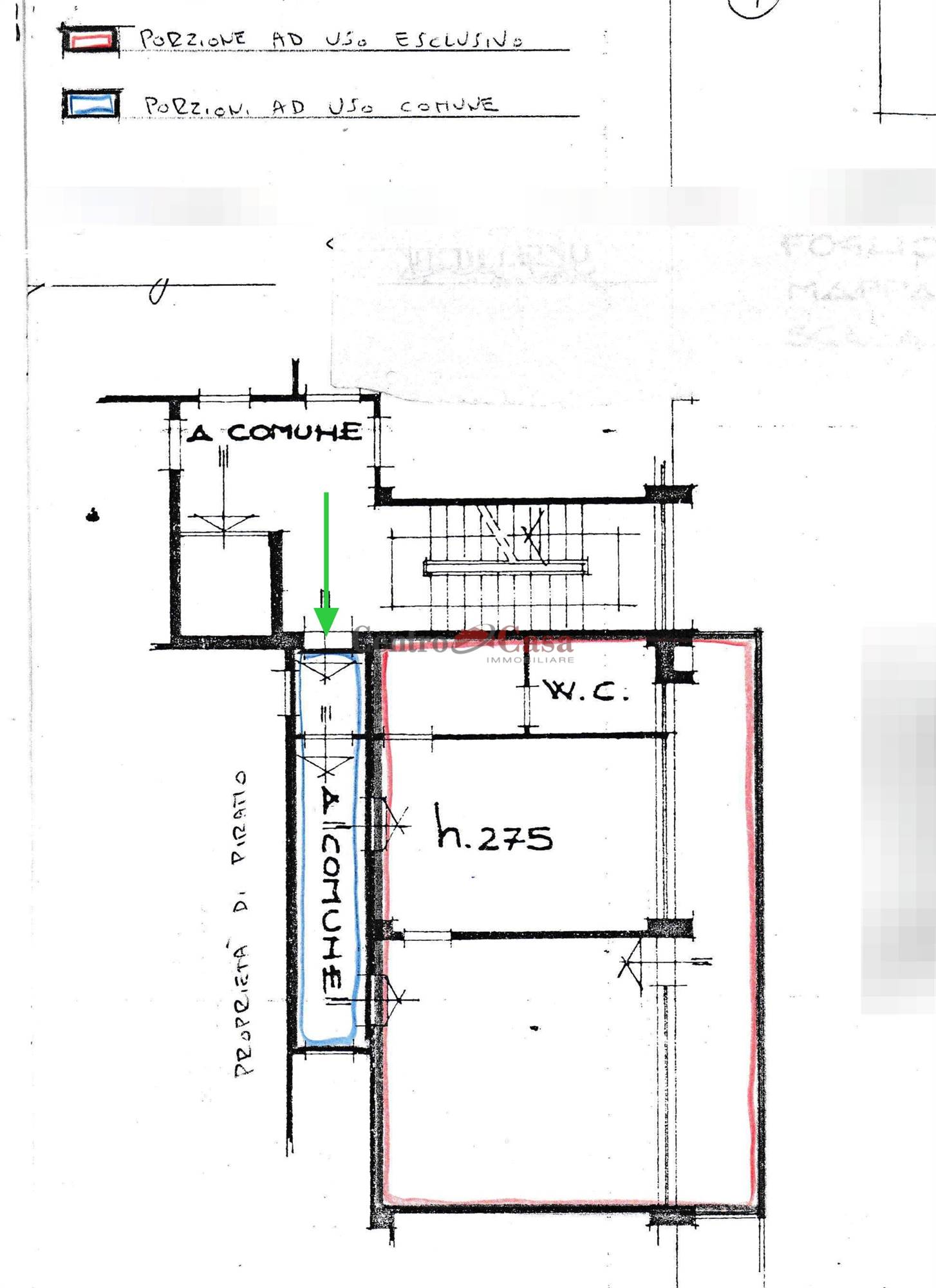
The property is in excellent condition and already partially furnished with office equipment as shown in the published photos. It consists of two main rooms (one of approximately 25 m² and the other of approximately 18 m²), a bathroom for exclusive use with an anteroom — the latter also usable as an archive — as well as a private terrace and an uncovered parking space.
The entrance/corridor is shared with the owner of the property.
Condominium expenses approximately 45 euros per month.
Ideal for professional offices (lawyers, accountants, consultants), management offices, technical offices, consulting or small administrative activities, small service companies, representative offices.
Advantages and Potential:
Strategic and representative location, a stone's throw from the walls and city services.
Excellent natural light — comfortable working environment.
Ready-to-use solution (partially furnished) that allows for rapid settlement.
Anteroom usable as an archive: convenient for document infrastructure.
Parking space included — a rare convenience in a semi-central area.
Contact us for more information or to book a visit.
Energy Class G-297.14 KWh/sq m *year.
Primal Features
Code
U2119
City
Lucca
(Arancio)
Category
Office
Price
600 € / month
Expanses
500 € / year
Locals
2
Bathrooms
1
Sqm
50
Car places
1
Terraces
1
Floor
1
Energetic class
G
297.14 kWh/m²a
Property Conditions
Perfect Conditions
View
Open View
Orientation
Est
Free Sides
1
Furniture
Half Furnished
Heating
Independent
Heating Type
Boiler
Type of heating system
Radiator heating
Energy source
Natural Gas Heating
Fixtures
Metal double glazed
Doors
Excellent
Floors
Ceramic
Caution
Three Months
Advance Rent
One Month
Type of Contract
6+6 Years
Registr. Type
Traditional
Accessories:
Elevator, Electric gate, Double Glazing, Optical Fiber, Armored door, Closet
Map
Viale Castruccio Castracani , Lucca (LU)
Video
Virtual tour 360°
Photos • Floorplans • Video
Photos
Floorplans
Video
Options
Print Property sheet
Information request
Name *
Phone *
E-mail *
Request Details *
I authorize the processing of my personal data according Regolamento UE n. 679/2016 -
Privacy Policy
I authorize the processing of data for marketing purposes, promotional activities, commercial offers and market research.
Send
Share on
We also recommend
for Rent
Office for rent in Lucca
400 € / month
for Rent
400 sqm Real Estate Unit for Rent in Lucca Ovest
4,500 € / month
for Rent
Ground floor office, 40 sqm, in a prestigious historic building
400 € / month
Keep default settings X
Use of cookies
This site uses cookies. Our (own) cookies and those of our Partners (third party cookies) are used to offer you a unique experience with us. For this reason, together with our partners, we collect and process non-sensitive information (such as the identifier of your device or the pages you visit).
At any time you can delete, modify or verify the information you share in
Cookie preference
or in our
Cookie Policy
and
Privacy Policy
.
Necessary
Functional
Profiling
Analytics
Accept all
Decline all
Accept selected
Cookie preference