English
Italiano
290 € / month

Room used for sublet office nearby Porta Elisa, fee including utilities.

Office for rent • Lucca (Arancio) - Viale Cadorna
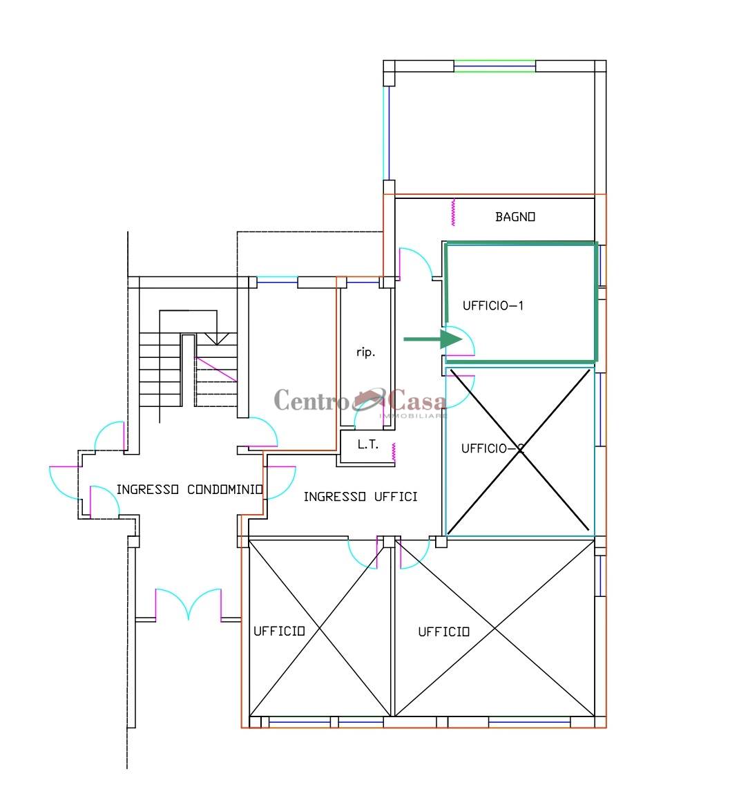
In a strategic position, a few steps from the city walls of Lucca and the historic center easily reachable on foot, a room for office use is offered for sublease for exclusive use of 10 m² within a larger office.
The property is located on the ground floor of a condominium building located in a quiet and private setting.
Offer features:
10 m² for exclusive use, ideal for a large workstation;
Shared use of entrance, corridor and bathroom;
Partially furnished room, with the possibility of removing the furniture on request;
Office immediately ready for use.
Rent and expenses:
The monthly rent is all-inclusive and includes utilities for water, electricity, gas, cleaning of the premises, condominium fees and WiFi connection.
Security deposit to be agreed, type of contract: sublease, with a currently possible duration until 2030.
Ideal solution for professionals looking for a functional, comfortable and immediately operational environment a stone's throw from the walls of Lucca.
Additional availability: Currently there is also an additional room of 15 m² available, at a monthly rent of €390, with all utilities included as for the main room.
Contact us for more information or to book a visit.
Energy class G-388.7 KWh/sq m *year.
THE PUBLISHED ADDRESS IS INDICATIVE OF THE AREA IN WHICH THE PROPERTY IS LOCATED.
Primal Features
Code
U3172
City
Lucca (Arancio)
Category
Office
Price
290 € / month
Locals
1
Bathrooms
1
Sqm
10
Floor
Ground floor
Energetic class
G
388.7 kWh/m²a
Property Conditions
Perfect Conditions
Furniture
Furnished
Type of heating system
Radiator heating
Energy source
Natural Gas Heating
Fixtures
Wood
Doors
Good
Floors
Parquet
Caution
To Define
Advance Rent
One Month
Type of Contract
Commerciale
Registr. Type
Traditional

Accessories: Closet

Map
Viale Cadorna , Lucca (LU)
Video
Virtual tour 360°
Ingresso comune Corridoio comune Stanza 10 mq. uso esclusivo
Information request
Send
Share on
Cookie preference