Italiano
English
390 € / mese

Stanza uso ufficio in subaffitto vicinanze Porta Elisa, canone comprensivo di utenze.

Ufficio in affitto • Lucca (Arancio) - Viale Cadorna
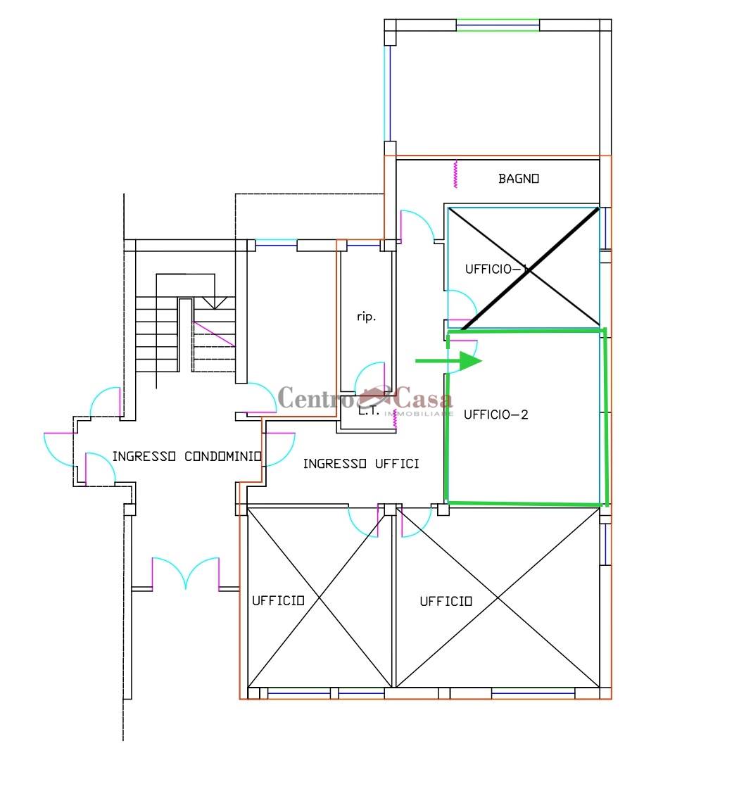
In posizione strategica, a pochi passi dalle mura urbane di Lucca e dal centro storico facilmente raggiungibile a piedi, si propone in subaffitto una stanza uso ufficio ad uso esclusivo di 15 m² all’interno di un ufficio più ampio.
L’immobile si trova al piano terra di una palazzina condominiale situata in un contesto tranquillo e riservato.
Caratteristiche dell’offerta:
15 m² ad uso esclusivo, ideali anche per due postazioni di lavoro;
Utilizzo in comune di ingresso, corridoio e bagno;
Stanza arredata, con possibilità di rimozione degli arredi su richiesta;
Ufficio subito pronto all’uso.
Canone e spese:
Il canone mensile è all-inclusive e comprende le utenze di acqua, luce, gas, pulizia dei locali, spese condominiali e connessione WiFi.
Deposito cauzionale da concordare, tipologia di contratto: subaffitto, con durata attualmente possibile fino al 2030.
Soluzione ideale per professionisti o piccoli team che cercano un ambiente funzionale, comodo e immediatamente operativo a due passi dalle mura di Lucca.
Disponibilità aggiuntiva: Attualmente è disponibile anche un’ulteriore stanza di 10 m², al canone mensile di 290 €, con tutte le utenze incluse come per la stanza principale.
Contattaci per maggiori informazioni o prenotare una visita.
Classe energetica G-388,7 KWh/mq.*anno.
L'INDIRIZZO PUBBLICATO E' INDICATIVO DELLA ZONA IN CUI SI TROVA L'IMMOBILE.
Caratteristiche principali
Codice
U3171
Città
Lucca (Arancio)
Categoria
Ufficio
Prezzo
390 € / mese
Locali
1
Bagni
1
Mq
15
Piano
Terra
Classe energetica
G
388,7 kWh/m²a
Stato Immobile
Ottimo
Arredi
Arredato
Tipo Impianto
Radiatori
Fonte Energetica
Metano
Infissi
Legno
Serramenti
Buono
Pavimento
Parquet
Cauzione
Da Definire
Canoni Anticipati
Un Mese
Tipo Contratto
Commerciale
Tipo Registr.
Tradizionale

Accessori: Ripostiglio

Mappa
Viale Cadorna , Lucca (LU)
Video
Virtual tour 360°
Ingresso comune Corridoio comune Stanza 15 mq. uso esclusivo
Richiedi informazioni
Invia
Condividi su
Cookie preference