Italiano
English
165.000 €

Villetta semi-indipendente con giardino privato.

Casa singola in vendita • Lucca (La Cappella) - Via della cappella, 20
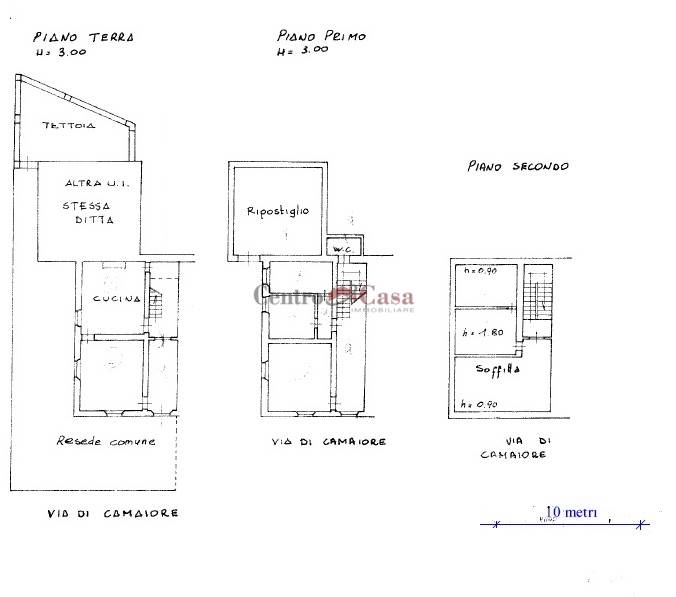
OCCASIONE. La Cappella - Proponiamo in vendita interessantissima casa padronale, libera su tre lati con giardino privato, capanna adiacente e porticato. L'immobile si presenta con ingresso indipendente tramite cancelletto pedonale. Entrando dal portone d'ingresso, ci troviamo all'interno del lungo corridoio che porta al vano scale, alla sinistra del quale troviamo la sala da pranzo, una cucina abitabile, un locale lavanderia con porta di collegamento al capanno adiacente ed un bagno finestrato con doccia. Salendo al primo piano troviamo un disimpegno che da accesso ad una camera matrimoniale ed una singola, ed un'ulteriore camera matrimoniale, tutte con pavimentazione in cotto e soffitti con travi e travicelli a vista. Salendo ulteriormente le scale troviamo un piccolo bagnetto di servizio nel piano mezzano che poi ci porta alla grande soffitta. A corredo un capanno di 95 mq ed un porticato che affaccia sulle colline del morianese. Immobile con grandi potenzialità. Classe energetica G-235,16 kWh/mq*anno
Caratteristiche principali
Codice
V2575
Città
Lucca (La Cappella)
Categoria
Casa singola
Prezzo
165.000 €
Locali
5
Camere
3
Bagni
2
Mq
178,5
Mq Box
95
Mq Giardino
35
Piano
Terra
Classe energetica
G
235,16 kWh/m²a
Stato Immobile
Abitabile
Grado
Medio
Posizione
Campagna
Panorama
Vista Aperta
Orientamento
Est Sud Ovest
Lati Liberi
3
Giardino
Privato
Arredi
Possibilità
Tipo Soggiorno
Sala da Pranzo
Tipo Cucina
Abitabile
Riscaldamento
Autonomo
Tipo Riscaldam.
Caldaia
Tipo Impianto
Radiatori
Fonte Energetica
Metano
Acqua Calda
Autonoma
Infissi
Legno
Serramenti
Buono
Persiana
Persiana Metallo
Pavim. Giorno
Graniglia
Pavim. Notte
Cotto
Pavim. Cucina
Ceramica
Pavim. Bagno
Ceramica
Accesso Disabili
Nessuna Barriera

Accessori: Camino, Lavanderia, Ripostiglio

Mappa
Via della cappella 20, Lucca (LU)
Video
Virtual tour 360°
Sala Cucina Vano scale primo piano Camera matrimoniale Camera singola Camera Matrimoniale Soffitta
Richiedi informazioni
Invia
Condividi su
Cookie preference