Italiano
English
370.000 €

Villa singola con 2 unità abitative, garage, dependance e giardino privato

Villa in vendita • Lucca (Santa Maria a Colle) - Via del Burlamacco
In contesto di campagna ben soleggiato e lontano dal traffico, proponiamo in vendita questa villa singola libera su quattro lati, edificata negli anni ’70 e caratterizzata da ampie metrature e grande versatilità d’uso.
L’immobile, di circa 290 mq complessivi, è attualmente suddiviso in due unità immobiliari uso abitativo poste al piano terra e primo e accatastate separatamente, collegate internamente da scala ma ciascuna dotata di ingresso autonomo dall’esterno. Soluzione ideale per due nuclei familiari, genitori/figli o per chi desidera un’abitazione principale con appartamento accessorio.
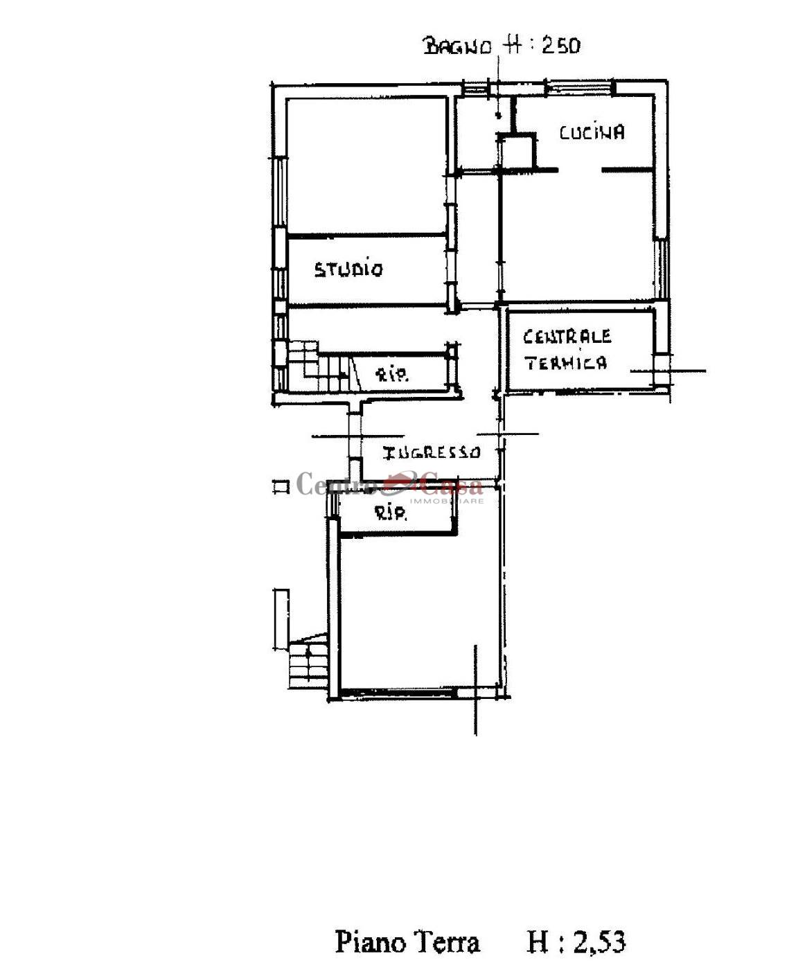
Il piano terra, alto 2,53 mt. si compone di ampio disimpegno d’ingresso, cucina, soggiorno con camino, ampia camera matrimoniale, studio (all'occorrenza eventuale seconda cameretta), bagno, 2 ripostigli, locale termico, grande vano pluriuso ideale come soggiorno aggiuntivo o veranda.
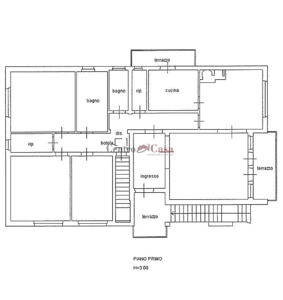
Il piano primo, alto 3,00 mt. si compone di grande sala con accesso a terrazzo, sala pranzo con camino, cucina abitabile con terrazzo, tre spaziose camere matrimoniali, doppi servizi, 2 ripostigli, terzo terrazzo, ampio disimpegno d’ingresso.
Accessori e pertinenze:
- Un Garage di circa 31 mq al piano terra, collegato direttamente all’abitazione;
- Una Struttura indipendente in muratura di circa 52 mq, di recente costruzione, composta da tre vani e bagno, attualmente ad uso magazzino, ideale come dependance, studio professionale o spazio hobby;
- Un Ampio giardino privato completamente recintato che circonda la villa sui quattro lati.
La proprietà necessita di interventi di ammodernamento e ristrutturazione. Gli impianti sono funzionanti, tuttavia risalenti all’epoca costruttiva; finiture interne ed esterne da aggiornare.
Soluzione di grande interesse per chi cerca una vera casa indipendente in campagna, spazi generosi, possibilità di abitazione plurifamiliare, immobile personalizzabile secondo le proprie esigenze.
Contesto tranquillo ma non isolato, a breve distanza dai principali servizi e dalla città di Lucca.
Classe Energetica G-225,7 KWh/mq.*anno.
L'INDIRIZZO PUBBLICATO E' INDICATIVO DELLA ZONA IN CUI SI TROVA L'IMMOBILE.
Caratteristiche principali
Codice
V3184
Città
Lucca (Santa Maria a Colle)
Categoria
Villa
Prezzo
370.000 €
Locali
11
Camere
5
Bagni
3
Mq
290
Box
1
Mq Box
31
Terrazzi
3
Classe energetica
G
225,7 kWh/m²a
Stato Immobile
Discrete Condizioni
Grado
Signorile
Posizione
Campagna
Panorama
Vista Aperta
Orientamento
Nord Ovest Sud Est
Lati Liberi
4
Giardino
Privato
Tipo Cucina
Abitabile
Riscaldamento
Autonomo
Tipo Riscaldam.
Caldaia
Tipo Impianto
Radiatori
Fonte Energetica
Metano
Acqua Calda
Autonoma
Infissi
Legno
Serramenti
Discreto
Persiana
Tapparella PVC
Pavim. Giorno
Ceramica
Pavim. Notte
Ceramica
Pavim. Cucina
Ceramica
Pavim. Bagno
Ceramica
Accesso Disabili
Nessuna Barriera
Accesso interno disabili
Pieno accesso

Accessori: Aria Condizionata, Camino, Lavanderia, Ripostiglio, Veranda

Mappa
Via del Burlamacco , Lucca (LU)
Video
Virtual tour 360°
Tinello piano primo Sala piano primo Cucina piano primo Ingresso piano primo Disimpegno piano primo Camera piano primo Camera piano primo Camera piano primo Bagno piano primo Soggiorno piano terra Disimpegno piano terra Camera piano terra Studio piano terra Veranda/Soggiorno piano terra Ingresso piano terra Bagno piano terra
Richiedi informazioni
Invia
Condividi su
Cookie preference